本次為創客孵化中心辦公樓設計方案,設計師在本次辦公室設計中,設計師以一種多元文化的思考方式,大膽地將工業風的活力、與現代辦公模式的需求相結合,同時兼容休閑辦公與時代創新,反映出個性化設計將成為未來設計的主流,這樣的設計讓空間得以滿足更多需求。

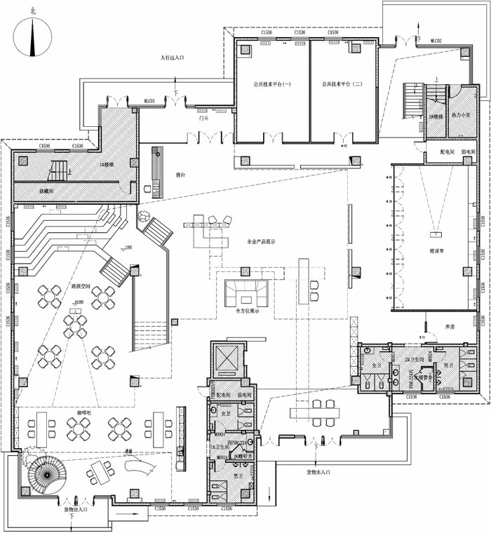
辦公樓一樓設計平面圖:人們通過出入口進入室內,經過前臺,然后進入接待區域,一樓包括培訓室、庫房、咖啡吧、儲藏空間、技術平臺。

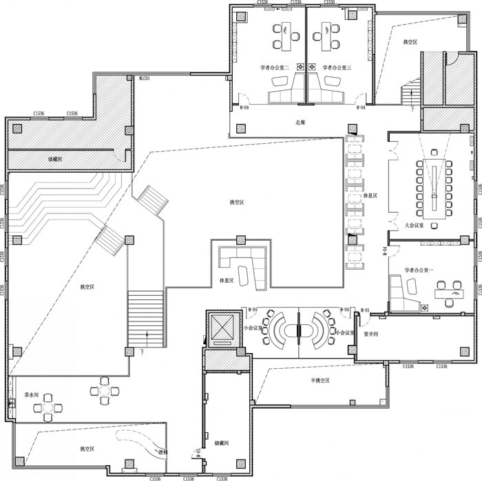
辦公樓設計平面圖:此處空間包括:私人辦公室、休息區、大小會議室、茶水間、儲藏間,設計師的目的就是為了讓空間互通有無。

辦公樓辦公區設計平面圖:此處辦公區共分為八個區域,一共可以承載將近180個人在這里辦公,同時這里還配置了經理辦公室、財務室、中會議室、打印區等配套設施。

辦公樓設計平面圖:此處與主流辦公區相似但又不同,這里承載辦公的人數縮減了很多,但相對的休息區、露臺等人性化配套設施卻多了不少,每一個區域都各有自己的特色。

辦公樓進門區設計:紅色的大門首先起到的就是明顯的標示作用,其次也代表著企業的紅紅火火,在從外向內的過程中,可以對內部空間有一個大致的了解,為客戶留下第一印象。

辦公樓前臺設計:前臺最重要的作用就是引導與接待,前臺設計師將其設計成三角形,三角形設計象征著一種進取的力量,設計師希望客戶在這里可以尋找到志同道合的朋友。

辦公樓大廳設計:前臺的設計相對空曠一些,這樣一來可以承載更多的人,二來更利于空間的疏導,三來預示著大家為了夢想匯聚在一起,然后分頭去尋找與自己志向相合的人。

辦公樓展示墻設計:展示隔斷一來將內部空間與外部空間很好的加以阻隔,二來也起到很好的展示作用,這樣做的目的就是讓內外空間在展示墻的阻隔下,各行其道。

辦公樓接待區設計:進入空間后接下來就是坐下來好好交流交流,接待區位于前臺的后方,在這里即滿足了公司與公司、公司與客戶之間的交流,在區分空間的同時,滿足相互的需求。

辦公樓設計一樓俯視圖:站在樓梯上可以將整個空間盡收眼底,開放式空間加上錯落有致的設計,讓空間也成為一套別樣的風景,在勞累之余站在這里,也不失為一種視覺享受。

辦公樓樓梯設計:樓梯位于前臺的一旁,這樣客戶可以在一樓與二樓之間自然選擇,樓梯的階段性設計,也是為了讓大家在上樓的同時,也可以欣賞到整個空間的景色。

辦公樓滑梯設計:滑梯我們估計也只有在小時候才玩過吧,滑梯的存在就是希望大家可以開放自我,希望大家可以不忘初心,在娛樂的同時可以找回心中的美好。

辦公樓茶水間設計:茶水間位于空間的中心區域,之所以安置在此處的目的,就是希望滿足各個區域的需求,設計師希望設計可以更加人性化。

辦公樓交流區設計:在各個門口設計師都會安置交流區在哪里,目的就是希望為空間提供更多可能,一來可以將空間利用達到最大化,二來也為企業營造不錯的辦公氛圍。

辦公樓休息區設計:在空間中充斥著陽光與綠植,大家在這里休息的同時,可以感受到不一樣的空間氛圍,設計師希望大家可以在這里稍事休息,在這里遠離城市的喧囂。

辦公樓交流區域設計:這里匯聚了空間的所有人,在這里有認識的、有不認識的,大家相互匯聚在一起,在這里可以交到更多的朋友,企業也有更多發展的機會與機遇。

辦公樓休息區域設計:這里是一個遠離喧嘩、遠離壓力的區域,大家在這里可以放飛心情,在這里聊聊天、偷偷懶,在這里大家可以得到暫時的安寧,休息之后走上新的征程。

辦公樓會議室設計:會議就是思想碰撞的場所,在這里大家的想法在這里交匯、討論、交融,正如樹干與樹根的關系,設計師希望大家的思路可以活躍起來,由各抒己見到萬法歸一。

經理辦公樓設計:在這里設計師沒有做過多的設計,設計師希望每個經理都有自己的特色辦公室,設計師為他們留下來自由發揮的空間,重新組合全在一念之間,沒有一成不變的設計。
本次創客孵化中心辦公樓設計方案講解到此結束,在本次辦公室設計中,設計師在開放性的大空間背景之下,將封閉空間、會議空間、辦公空間、休息空間等各種空間有條不紊的融入其中。