本次為設計事務所辦公室設計項目,在本次設計中設計師對于企業文化、理念與空間的大小,做了深入的研究,最后決定以分層次、分階段的設計手法對空間進行設計。

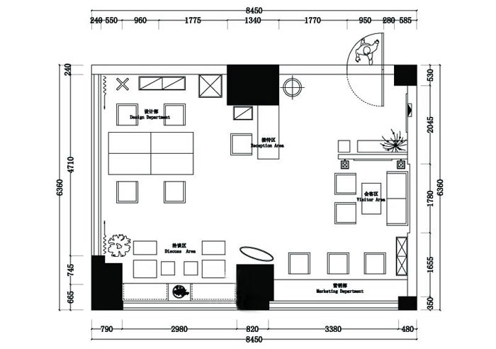
平面圖:設計師在設計的時候,首先就是對空間進行劃分,其中空間包括:接待區域、設計部、會客區、洽談區域、辦公區域

進門過道的設計:設計師在設計的時候將進門區域按照6:4的比例對空間進行劃分,在增加空間屬性的同時,也將一個空間分離成兩個空間,一邊為前臺過道區域,一邊為接待區域,這樣的設計加深了空間的縱深,無形中在視覺上增加了空間的面積,同時為空間的多空間形成建立基礎。

洽談區域的設計:由于行業的不同,洽談也就以為著修改,設計師們往往會根據客戶的要求與意見,現場對設計方案進行修改,這樣的設計既包含了對客戶的關心又包含了工作的便捷與快速。

辦公區域的設計:設計師在設計的時候,將其安置在空間的深處,設計師的工作環境往往需要安靜、與空間的暢通,設計師在設計的時候,在空間中采用極簡的布局方法,以此在滿足辦公需要的同時,為設計師打造優質的思考與辦公空間。

休息區域的設計:設計師在設計的時候,將其安置在辦公區域的中心區域,設計師希望設計師在工作之余可以在此處休息,整理一下思路,正在做到勞逸結合,空間的氛圍也隨之轉化為溫馨的空間氛圍,讓設計師感受到生活的美好。
本次設計事務所辦公室設計方案講解到此結束,希望通過嵐禾設計的介紹可以為大家帶來一絲靈感與創意,設計師認為企業的不同、行業的不同,設計也是千差萬別。