消防安全出口指示燈的作用就是示意指示方向,指示燈分為兩類,燈光類和熒光類,有指向左右的、單向指左、單向指右,下面嵐禾設計為大家介紹,消防安全出口指示燈安裝標準:
安裝標準
安裝位置

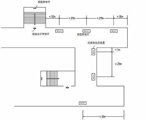
安裝位置通常是室內通往室外的正常出口、應急通道的出口處。
單面標志燈

單面安全出口標志燈一般安裝于出口門框的上方,如果門框太高時,可安裝于門框的側口位置。
多層和高層

1:各樓層通往樓梯間、消防電梯前室的門口;
2:大面積的廳堂、場、館通向疏散通道和通往前廳、側廳、樓梯間的出口。
安裝高度

1:為防止火災發生時產生的煙霧影響視覺,消防應急燈的安裝高度以2-2.5米為宜;
2:安全出口指示燈的正面畫面部分,盡量與安全疏散通道保持垂直角度。
安裝間距

1:消防安全指示燈的安裝位置通常是在公共建筑物內的安全疏散通道,方便人員疏散時,無論從哪個位置都能夠找到正確的緊急逃生出口;
2:消防應急疏散通道或安全緊急出口通道安裝的應急疏散指示燈間距不應大于20米。
較大空間

較大空間應按一定的距離布燈,固定于安全出口通道的立柱上面,或壁掛于墻面上,或吊掛于天花板等多種形式【安裝高度一般在距地面0.3-1.0米左右】。
密集型場所

1:車站候車廳、機場候機大廳、醫院、商場等人員密集型公共場所,建議適當加大布燈密度;
2:安全出口疏散指示燈,宜采用寬度大于600毫米的應急指示燈具,便于突發停電時可以更加直觀,迅速地發現應急燈具所在位置,準確地引導人員安全撤離,同時也提升了使用場所光照的部分指標。
注意
1:消防應急燈的安裝高度或安裝位置,并不是死板的硬性規定;
2:當安裝應急燈具的位置無法布線時,或此處有不可逾越的障礙物時,可通過多設置一些其他類別的消防應急燈具替代或補充;
3:此時可以適當加密應急疏散指示燈、地面疏散指示燈、墻面指示燈,或增加背膠形式的熒光安全指示牌等措施加以補充,以此滿足空間對于消防應急照明、安全疏散指示的要求。
溫馨提示
在文章的最后為大家總結,指示燈與指示燈之間的距離不應大于20米,消防安全出口指示燈的安裝規范,安裝高度及布燈密度,應該以實際安裝使用的環境為準,進行不同層次的調整。