本次為影視辦公室裝修設計效果圖,設計師在辦公室設計中,采用半透明的聚碳酸酯面板和彩色的密度板,打造一個明亮靈活的辦公空間,屋頂的大天窗,爭取自然光最大限度的滲透。
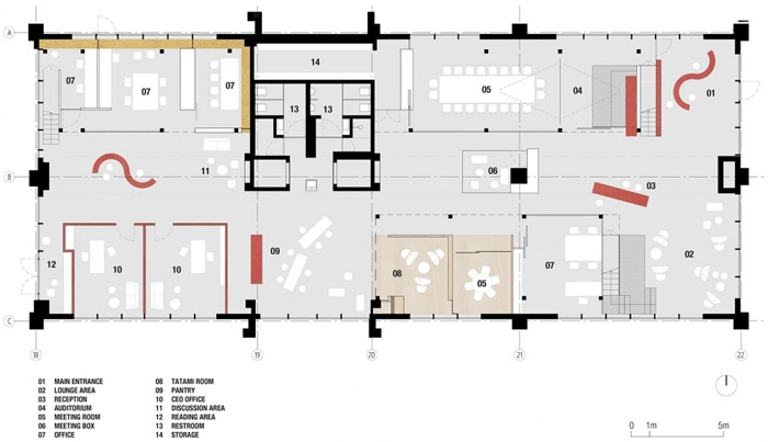
▼影視辦公室一層平面圖

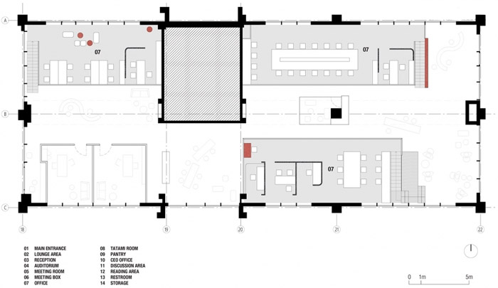
▼影視辦公室夾層平面圖

▼影視辦公室剖面圖

▼影視辦公室入口前臺

▼影視辦公室接待區

▼影視辦公室接待區

▼影視辦公室樓梯

▼影視辦公室走道

▼影視辦公室交流區

▼影視辦公室交流區

▼影視辦公室討論區

▼影視辦公室會議室

▼影視辦公室會議室

▼影視辦公室夾層辦公區

▼影視辦公室夾層辦公區

▼影視辦公室茶水間

▼影視辦公室茶水間

▼影視辦公室茶水間

本次影視辦公室裝修設計效果圖講解到此結束,設計師在辦公室設計中,采用半透明的聚碳酸酯面板和彩色的密度板,打造一個明亮靈活的辦公空間。