本次為辦公樓綜合體設計方案,面積1500平方,設計師以科技、自然、人文為設計理念,嘗試打造出一個極具未來感、高度人性化的現代、高效、綠色的辦公空間。
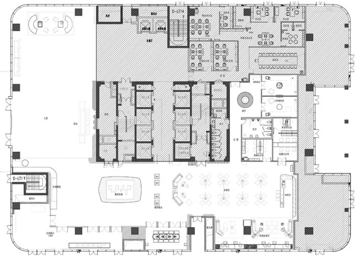
▼平面圖

▼大廳

▼前臺

▼接待中心

▼接待中心

▼洽談區

▼洽談區

▼二層接待

▼二層接待

▼二層洽談

▼二層洽談

▼二層會議

▼二層會議

▼二層辦公

▼二層辦公

▼大會議室

▼總經理辦公

▼總經理辦公

本次辦公樓綜合體設計方案介紹結束,面積1500平方,設計師以科技、自然、人文為設計理念,嘗試打造出一個極具未來感、高度人性化的現代、高效、綠色的辦公空間。